液晶拼接屏如何施工?有哪些施工流程?不少弱電人覺得拼接屏施工就那些活,比較簡單,不需要方案。但實際中,很多甲方還是需要項目經理能夠提供方案,以便了解項目進度與質量控制以及售后情況。本期我們便學習一套液晶拼接屏的施工方案。
隨著信息技術的快速發展, 某某工作室對信息顯示的要求也越來越高,迫切希望借助目前最先進的大屏幕拼接顯示技術,將各種監控系統的計算機圖文信息和視頻信號等進行集中顯示,構建一個高效便捷的視頻信息交流平臺,滿足自身的實時調度、會商、決策及信息反饋等需求。
根據某某工作室實際的使用要求和物理環境,我們設計了一套完整的DID LCD拼墻系統方案(Digital IntelligenceDisplay,數字專業屏幕顯示器),將國際最卓越的高清晰度數碼顯示技術、DID LCD拼接技術、多屏圖像處理技術、多路信號切換技術、網絡技術、集中控制技術等的應用集合為一體,使整套系統成為一個擁有高亮度、高清晰度、高智能化控制的液晶大屏幕拼接顯示系統。
大屏幕拼接顯示系統建設的總體目標是:系統充分考慮到先進性、可靠性、經濟性、可擴充性、可維護及管理性等原則,建設一套采用先進成熟的技術、遵循布局設計優良、設備應用合理、界面友好簡便、功能有序實用、升級擴展性好的液晶大屏幕拼接系統,以滿足用戶大屏幕圖像和數據顯示的需求。
在本系統中,我公司為某某工作室量身設計3行3列 46寸液晶屏拼接大屏顯示方案。該方案結合目前最先進的圖像處理和控制技術,滿足各類行業用戶的使用要求。
整套系統進行的總體設計及選用的設備均符合ISO(國際標準化組織)、IEC(國際電工委員會)、ITU-T(國際電信聯盟)、IEEE(電氣和電子工程師協會)、GB(國家標準委員會)、CCITT等行業標準。
1、先進性原則
某公司液晶大屏幕顯示單元不僅擁有優良的顯示特性,如高亮度、高對比度、高分辨率、寬視角、亮度及色彩均勻,而且具備大尺寸、顯示質量優異、單位面積成本低、使用壽命長等特點,充分體現當今顯示技術的發展水平,保證該系統具有較高的先進性。
液晶大屏幕顯示單元不僅能夠直接輸入RGB信號、YPbPr信號、S-Video信號、DVI信號、HDMI信號,還可以通過拼接控制系統進行多種信號源的拼接顯示。若配合矩陣進行信號切換,系統可以實現多路信號的同時輸入,并任意選擇一路信號在大屏幕上任一單屏的顯示。此外,系統采用全中文控制界面,不僅操作簡易直觀,而且具有強大的顯示控制功能。
2、可靠性原則
在系統設計時,關鍵部位選用了高可靠性設備,對于重要的控制節點采用最先進的高新技術來保障。整個系統可以實現7×24小時、一年365天連續無故障工作,具有高可靠性、高穩定性等特點。
3、經濟性原則
合理的性價比是系統設計中應當考慮的重要內容。因此,所選用的設備在兼顧良好性能的基礎上也要考慮經濟性,除考慮系統總體造價外,還應當考慮系統長期運行維護成本。液晶拼接系統由于其系統穩定性高,所以整個系統運行期間維護費用很低。
4、可擴充性原則
隨著技術的發展和需求的擴大,系統的擴充是必然的,因而在系統設計時充分考慮未來系統擴充的可行性。某公司拼接顯示系統采用模塊化設計,不僅可以實現用戶的擴容需求,更能實現前期設備的充分利用,充分保障了用戶的前期投入。
5、可維護、管理性原則
我們從用戶角度出發,充分考慮到系統設備的安裝、配置、操作方便等需求,提供了強大的系統管理手段,合理配置和調整系統負載、監視系統狀態、控制系統穩定運行。
液晶大屏幕拼接顯示墻由一套 3(行)×3(列)46″ (LED)超窄邊液晶顯示屏尺寸特性如下:
單屏尺寸:1024mm(W)x593.3mm (H) x 144mm(D) (單位mm)
組合尺寸:(593.3mm ×3) ×(1024mm ×3)
底座高度:實際高度根據用戶現場確定
背后維護空間:默認1000mm,實際空間根據用戶現場以及拼墻高度確定。
1、系統拓撲
整個大屏系統可以分為以下幾個部分:
前端系統:某公司的大屏顯示系統支持各類型信號的接入,如:模擬標清攝像機,高清數字攝像機,高清模擬攝像機,網絡高清標清攝像機等,除接入遠端攝像機之外,還能接入本地的VGA信號及DVD信號等,滿足用戶所有信號類型的接入。
傳輸控制系統:前端攝像機信號接入之后通過IP網絡、光端機等手段實現遠距離傳輸,通過在控制主機上安裝拼接控制軟件,即可對整個大屏顯示系統的控制與操作,實現上墻顯示信號的選擇與控制。
顯示系統:大屏幕拼接顯示系統支持BNC、DVI、VGA、HDMI等多種信號的接入顯示,通過控制軟件對已選擇需要上墻顯示的信號進行顯示,通過拼接控制器可實現信號的全屏顯示、任意分割、開窗漫游、圖像疊加、任意組合顯示、圖像拉伸縮放等一系列功能。

1、交貨進度
采購合同簽訂后10個日歷日內完成安裝調試完畢、檢測合格并交付采購人使用。
2、安裝調試
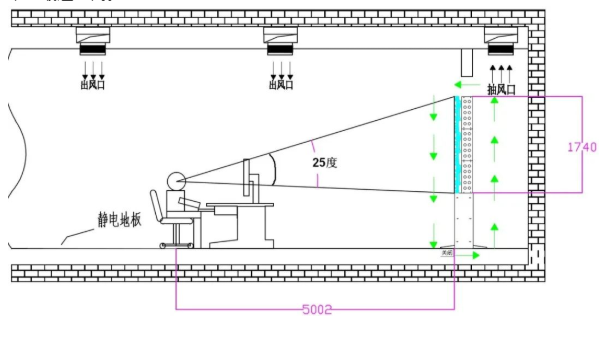
人體工程學設計
大屏幕最佳觀察視角設計是從人體工程學原理出發,對大屏幕系統的底座高度、水平視角、垂直視角進行人體工程學設計,以獲得最佳的觀看視角,讓用戶獲得最專業的視覺體驗。

設計屏幕最佳位置要遵循以下原則:
1) 垂直25度原則
人眼觀看某一物體時,視線夾角≤25度時不需要抬頭低頭動作,為最宜,滿足人體工學設計,長時間觀看不會造成脊柱疲勞,此時距屏幕的距離可視為最近觀看距離,即控制臺距屏幕的最近距離。

2) 水平視線原則
人眼的水平視線與投影屏幕垂直可獲得最佳的屏幕觀看效果,對于拼接大屏以最底一層屏幕的中位線作為基準。人體坐姿水平視線的高度一般為1.28米左右,讓拼接大屏最底一層屏幕的中位線距地面盡量接近這個高度為宜。

某公司大屏系統遵循以上兩個原則,所計算出的大屏底座高度及操作臺與屏幕的距離,符合人體工程學設計,讓客戶有最舒適的觀看角度、最佳的觀看效果。
1、 供電要求
本方案中顯示幕墻由6塊46英寸LCD顯示屏幕以3(行)X2(列)拼接方式組成,規格如下:
1) 大屏幕顯示墻系統設備要求提供穩定的單相220V穩壓電源。每臺液晶子單元額定功率為139W,每臺拼接控制器系統額定功率為300W。本套系統額定功率2000W,(含富余)。
2) 為大屏幕顯示系統設備的配電柜提供至少2個220V,5100W總電源空氣開關,為機柜設備提供至少21個220V 電源空氣開關,所有用電開關應采用優質的電工產品。
3) 每一列大屏幕顯示系統設備的底架下面提供至少2個 220V 電源插座,每個插座可提供三到四臺液晶屏幕的供電使用。
4) 每個機柜旁邊提供至少3個220V/10A電源插座。
5) 普通維修插座及照明用電線路應設有漏電保護開關。
6) 機房內所有的電氣材料均應有消防部門認可的生產證書,所有電線電纜均應為阻燃或難阻燃電纜。
聲明:施工時墻體的上方和左右兩側都要留有一定的操作空間??紤]到通風散熱問題,建議房間布局應有相應改動,即大屏背后空間應與機房相連通,既方便通風又方便維護。
2、空調要求
1) 大屏幕系統安裝房間有條件下可使用恒溫、恒濕送風型專用空調機,其他可使用冷暖型分體空調機(如有大樓中央空調系統,也應配置)。
2) 位于大屏幕顯示系統維修通道內的空調(中央空調或柜式空調),其出風口位置應盡量遠離后側箱體,并且出風口的冷風絕對不能對著屏幕直吹,要朝遠離屏幕的方向吹,以避免屏幕冷熱不均勻而損壞和結露現象。
3) 對空調設計的要求(較理想狀態):大屏幕顯示墻前面廳堂和背面維護通道中央空調的冷氣送風管道應設計成同一條管道出風和回風,所有的空調送風口應遠離大屏幕顯示墻3米左右,并且不能對著大屏幕顯示墻直吹;大屏幕前面和后面修護通道的空調開關集中安裝一個地方,在使用空調時應同時打開或同時關閉送風,防止遺忘某個開關造成嚴重的溫差。另外大屏幕顯示墻后的維修通道要加抽風機不少于2個向室外抽風,保證大屏幕顯示墻前后的空氣循環對流,以避免大屏幕顯示墻屏幕冷熱不均勻而損壞和結露現象。

4) 在濕度較大的地區,在機房內要安裝抽濕機,以保證相對濕度達到要求。
5) 大屏幕顯示系統在現場安裝前要求先對安裝點的空調系統和風機先進行運行1周時間,以保證空調管道內的粉塵已經清出。

3、溫濕度要求
1) 大屏幕顯示系統維修通道內有良好的空調環境和空氣對流,同時保證大屏幕系統前后溫度不會因溫差過大產生結露現象。
2) 大屏幕顯示系統的理想工作環境溫度為22℃±4℃,理想相對濕度30%至70%無冷凝,不可產生較大溫差、濕差突變,要保證溫度、濕度的變化有緩慢過程。
3) 如果使用環境長時間在高濕的環境下使用(機房與大屏幕廳堂的溫差),將會導致LCD的表面和邊框附近有聚集很多的水汽和水珠,水會慢慢的從邊框附近的縫隙滲透到LCD里面的玻璃邊緣, LCD表面的水也會漸漸的滲入到LCD內部, 從而慢慢的腐蝕玻璃內部的結構,破壞玻璃內部原有的結構,出現液晶分子聚集或流出,從而產生液晶漏液的現象。
4) 使用方法不正確或維護不當而引起的任何損失(包括但不限于設備本身損失、使用方或第三方因此所受的損失),本公司均不承擔責任。因此所致的故障設備也不屬于本公司提供的質保服務范圍。本著雙方友好合作關系,可進行協商處理。
注意:
當系統關閉時,請關閉機房空調保持內外溫差一致。
當長時間關機后,再開啟時請檢查屏幕有無結露或水珠現象。
當發現有結露或水珠后,請不要用濕抹布擦拭,請用吸水紙巾吸干。并及時通知本公司。
4、燈光要求
1) 為了在觀看區能達到好的觀看效果,建議在屏幕前面四米內為暗區,不能安裝日光燈管。建議安裝內藏式筒燈平行于屏幕排列,要單獨可控開與關。燈光不能直接照射到屏幕上。盡量設計背朝大屏方向。
2) 整個大廳的燈按平行于屏幕方向分組進行控制,不要選用較強光的光源,燈光的布置原則是:使工作區有足夠燈光強度,但對屏幕又不會產生明顯的影響。
3) 大廳兩側可能射入的光線(如窗戶),應有必要的遮擋(如窗簾等)。(太陽光對圖像效果影響最大)。
5、裝修要求
1) 大屏幕顯示系統的屏幕窗口的裝修墻體厚度建議為80mm,墻體要求牢靠,窗口四周平直不變形。
2) 大屏幕安裝前,裝修墻體預留安裝窗口尺寸:(1024×3+50)mm水平X (593.3×3+50)mm垂直;即比大屏幕顯示墻全部屏幕實際尺寸的每邊大出50mm,當拼墻10列以上時,預留安裝窗口要比拼墻總尺寸相應留大一些,以方便拼墻安裝。
3) 大屏幕顯示墻安裝到位后,由現場裝修單位對屏幕四周邊予留空隙進行收口(以不漏光為原則),并作必要的修飾。整個裝修格調清新、色調偏冷,以簡潔明快為好。無論天花采用何種材料裝修處理,顏色乳白,或銀灰、或淺灰均可,但應啞光著色,表面一定不能有強烈反光。墻面飾板色調明快,配以較深的線條,適當部位配以吸音材料,墻面啞光為主。地面最好用防靜電地板,鋪地毯,顏色較深,或其它不反光的地面材料。
4) 進場安裝前應保證現場環境干凈、整潔無塵、無噴刷油漆和石灰等施工,顯示墻安裝范圍內無高空作業。消防系統應經過安全測試,空調可供使用,系統用電保證穩定安全。
6、大屏幕顯示系統設備維修通道與地面要求
1) 大屏幕顯示墻的背后應有不少于1米的維修通道,設置可獨立控制燈光。
2) 大屏幕顯示墻與維修通道的地面最好能涂地面防塵漆,能有效防止地面灰塵對顯示光學設備的影響。
3) 保證大屏幕顯示墻安裝地面的平整度,地面不平整度不大于±3毫米。
4) 如果大屏幕顯示系統維修通道后面的墻是玻璃墻或側面有玻璃窗體的,請用加厚型遮光布做窗簾,用于遮光、隔熱,避免陽光的直射。

注意:用戶需根據大屏幕顯示系統設備的總重量,看現場系統設備安裝區的樓層承重是否能滿足設備的承重要求,如不能滿足要求,必須請專業公司對樓層承重進行加固處理。
8、防塵要求
大屏幕顯示系統在安裝調試和使用期間,確保工作區內保持現場環境干凈無灰塵,灰塵濃度參照普通辦公室的灰塵環境條件。
9、接地要求
1) 在大屏幕顯示系統設備和機柜設備邊上應設置專用的接地點。
2) 機房聯合接地電阻不大于3歐姆。
3) 防雷接地,應按現行國家標準《建筑防雷設計規范》執行。
10、消防要求
1) 機房內應配備消防檢測(溫感、煙感)裝置,并備有氣體滅火裝置。消防噴頭要遠離顯示箱體1米左右,不能采用噴水消防頭,要用噴霧滅火劑。
2) 消防設備由專業安裝施工單位負責施工。
11、機械沖擊和振動要求
大屏幕顯示系統安裝工作區內地板表面垂直及水平向的振動加速度值應符合中華人民共和國電子計算機機房(GB50174-93)設計規范指標要求。
12、磁場要求
大屏幕顯示系統工作區內的無線電干擾場強和磁場干擾環境場強應符合中華人民共和國電子計算機機房(GB50174-93)設計規范指標要求。
13、綜合布線要求
1) 強電線槽與弱電線槽應嚴格分隔,不能交叉。
2) 綜合布線弱電線槽不要采用線管。
3) 線槽連接之間應平滑過渡,不應有毛刺和尖角。
4) 線槽應有良好的公共接地和良好的屏蔽。
5) 強弱電線槽由專業安裝施工單位負責施工
6) 顯示墻電源的走線應走在顯示底座的外圍,防止線槽與顯示底座支撐腳有沖突。大屏底架落腳處不能鋪設管道,電纜等,底架下方只能鋪設不大于50mm高度的線纜或管子。
14、大屏幕墻體安裝固定要求
1) 大屏幕顯示系統墻體的底座直接安裝固定在水泥地面上,而不能安裝在防靜電地板上。
2) 大屏幕顯示系統墻體通過支撐拉桿連接到顯示墻后面的鋼筋混凝土墻面上。
15、電源線使用
1) 請不要使電源線受損,也不要在電源線上放置重物、拉伸電源線、或使電源線過度彎曲另外,請不要增添延長電源線。如果電源線損壞,則可能引起火災或電擊。
2) 只能使用配套超窄邊LCD顯示單元附送的電源線。
3) 請勿用潮濕的手撥下或插上電源插頭。否則會引起觸電。
4) 如果長期不使用,請撥出電源線。
5) 如果電源線破裂或出現故障,不要試圖進行維修。請維修代理處負責維修。
16、 清潔與維護
1) 在清潔超窄邊LCD顯示單元前,請確保拔出電源線。不要試圖自己對產品進行維護,打開機蓋會使您接近高壓電或其它危險物件。必須請專業的服務人員進行維護。
2) 如何清潔超窄邊LCD顯示單元的液晶屏幕面板:
A、在擦拭屏幕時,請使用不縮水的干布,以免損傷屏幕表面涂層。不要使用化纖布或者清潔劑。
B、不要用苯、稀釋劑以及其它化工產品擦拭外殼。不要在外殼上噴灑揮發性溶液,如殺蟲劑等。不要讓外殼長時間接觸塑料或者橡膠材料。不要使用化纖布、清潔劑或者石蠟。
1、出廠前測試
某公司針對本次項目所使用產品通過了國家3C認證,并經過了嚴格的測試。我公司將按照用戶的要求,在設備出廠前對設備進行單項設備功能測試,以檢測單項設備功能是否滿足規范要求。
2、安裝前測試
貨物運抵現場后應進行設備開箱檢驗,內容是清點裝箱單的符合性,對設備進行外觀檢查,必要時進行通電檢查。根據工程進度安排測試時間,在設備運抵項目地點后,書面通知用戶所要進行測試的全部內容,并對測試結果負責。用戶和我公司代表應在測試報告上簽字。
3、系統調試
設備安裝后的測試應在各單項設備安裝完畢且系統聯機通電檢查后進行。
此項測試由我公司負責組織并指定操作人員,用戶派代表參加,我公司根據工程進度安排測試時間,所有測試細節須事先提交用戶批準。用戶和我公司代表應在測試報告上簽字。
4、系統試運行
在系統完成調試后,將開始試運行。在試運行開始前,整個大屏幕系統應完全調試開通,并保持最佳狀態。
試運行和用戶正常使用相似,由業主組織管理實施,供貨商保證本系統正常運轉。
試運行期間,我方將指派專職工程師參加,與業主人員一起記錄試運行期間設備和系統出現的各種情況。這種記錄將按日按月的時間順序和按設備分別登記,作為考核試驗的原始資料,并作為預驗收的依據。在此期間,各方還應根據出現的問題進行分析歸類,判明故障的性質。
試運行若按規定順利通過,業主將按合同簽發預驗收證書。
5、現場驗收
當主要指標(可靠性、穩定性、處理能力等)在驗收測試滿足要求后,進行現場驗收即最終驗收。
最終驗收測試條款由買賣雙方共同確定。如果所有性能和系統指標均與技術規范相符,雙方將簽署終驗證書。所有的設備基本功能和技術性能符合指標后,雙方即可簽署設備驗收證書。
一、 質量保證
我公司對其提供的設備,從工程驗收之日起算,質量保證期為壹年。提供的設備符合國家工商、質量監督部門“三包”規定,質保期內出現任何非人為故意損壞造成的質量問題,我公司承諾包修、包換、包退(指設備整體、非部件),并承擔修理、調換或退貨全部費用。
質保期內、外,客戶對設備的咨詢和投訴,我公司在1個工作日內予以答復。我公司負責設備的終身維修及零配件的及時供應。
二、售后服務
1、質量保證期內服務
電話咨詢:用戶的管理人員可直接通過電話聯系公司項目技術負責人,提供24小時電話技術咨詢服務,解答用戶在使用中遇到的問題,及時為用戶提出解決問題的建議。
現場響應:用戶遇到使用及技術問題,電話咨詢不能解決的,我公司將在24小時內采取相應措施,提供上門服務,確保設備正常工作。
產品在質保期內出現故障無法修復的,我公司將在3天內免費進行更換。
同一質量問題,修理兩次仍達不到標準要求的,我公司將為用戶免費調換合同規定的產品。
發生嚴重質量問題,用戶直接選擇換貨時,我公司將免費為其調換合同規定的產品。
技術升級:在質保期內,設備出現軟件系統升級,我公司將及時通知用戶,如用戶有相應要求,進行免費升級服務。
隨時優惠提供備品備件,優惠提供產品更新、改造服務。
2、質保期外服務
質量保證期過后,我公司會提供免費電話咨詢服務,并承諾根據用戶的需要每年定期對設備進行檢修,提供設備上門維護服務。
質量保證期過后,用戶需系統擴容或繼續提供售后服務的,我公司將只收取材料成本費和售后服務費。
3、故障響應時間
系統運行中,我公司將在接到用戶故障通知后立即作出響應。不能電話講解解決的,24小內到達現場進行處理。
4、維修配件
我公司在售后服務中,使用的相關設備維修零配件均為原廠配件。
5、知識產權
在此項目中,我公司所投報的設備和提供的服務,如果第三方提出侵權指控,我公司將承擔由此而引起的一切法律責任和費用。
三、技術培訓
1、培訓目的
為確保整個系統安全可靠地運行,并達到最大效益。需要培訓一批合格的維護和管理人員熟練掌握所提供的大屏設備及軟件的運行維護操作,并能及時判斷大部分的設備障礙,方便甲方人員在項目完工后對系統的正常使用。
2、培訓目標
掌握系統的初始化和主要參數的設定方法;
對一般性故障進行診斷、定位和排除;
掌握大屏故障后的恢復方法;
熟練查閱某公司大屏系統相關產品應用軟件使用手冊和維護手冊。
熟練地使用工作站設備和應用軟件界面。
3、培訓對象
1)系統管理人員
2)系統運行維護人員
4、培訓形式
為了使培訓達到最佳效果,使用戶獲得盡可能多的知識和經驗,某公司將采用多種途徑對用戶進行培訓:
現場授課:由專業資深的工程師,在用戶現場進行授課培訓,培訓包括操作系統、大屏產品知識等。通常由用戶的使用手冊支持,適當的操作為輔助。
現場指導:在項目執行過程中,某公司在實際操作中,會詳細講解操作步驟,指導客戶操作,并解答客戶的問題。
研討會:某公司將通過不定期組織的研討會,和用戶一起對項目管理、技術發展等問題進行研討
交流會:在項目執行過程中,某公司會經常與客戶相互交流工作的經驗、存在的問題。
5、培訓范圍

|